Bérelhető irodák



Exkluzív prémium irodák





Fenntartható, zöld megoldások


  • BREEAM In-Use „Excellent” tanúsítvány
  • EU taxonómiának való megfelelés
  • A+ energetikai besorolás
  • Távfűtés - nincs helyi légszennyezés és nincs károsanyag-kibocsátás
  • Kiváló minőségű hő- és hangszigetelés
  • Napelem rendszer (400 kW) 
  • Több fokozatú és kevesebb zajt kibocsátó gépészeti berendezések
  • Okos parkolás menedzsment rendszer
  • Szelektív hulladékkezelés (papír, műanyag, üveg)
  • Multifunkcionális gépészeti berendezések, éjjeli áramváltónak köszönhetően kevesebb zajszennyezés
  • Alacsony vízfogyasztású illemhelyek
  • Szürke vízrendszer alkalmazása
  • Esővíz összegyűjtése külön tartályba későbbi öntözéshez
  • Hővisszanyerős szellőztető rendszerek alkalmazása
  • Tartalék kapacitás a szellőztető és hűtőrendszernél
  • Kondenzációs hő visszanyerése a hűtőrendszerből
  • Optimalizált épületirányító rendszer (BMS)
  • Természetes fényforrások kihasználása – az ablakoktól számított maximális távolság 7 méter
  • Energiatakarékos LED világítótestek, mozgásérzékelők
  • „Free cooling” gazdaságos hűtőrendszer
  • Kerékpártárolók, zuhanyzók, öltözők




Kiváló minőségű műszaki adottságok


  • Kulcsrakész bérlemény kialakítás
  • Intelligens épületüzemeltetési rendszer (BMS) által vezérelt nyitható ablakok
  • Álmennyezet
  • Álpadló, 12 cm
  • Hűtőgerendás rendszer, amely összeköttetésben van az intelligens épületüzemeltetési rendszerrel (üvegtetőknél és földszinten fan-coil kialakítás)
  • Fűtés radiátorokkal és távhővel
  • Folyadékhűtő berendezés
  • 50 m3/ óra/ munkaállomás mennyiségű friss levegő befújás
  • Jelenlét érzékelős világítás, amely összeköttetésben van az intelligens épületüzemeltetési rendszerrel
  • 2,7 m tiszta belmagasság
  • Kettős betáp
  • Dízel generátor kialakítható a bérlők részére




Irodák



Összes bruttó terület
Szabad terület
Alaprajz
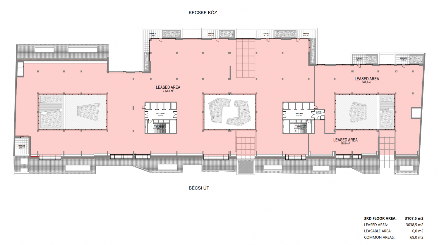
3. emelet
3108 m20 m2
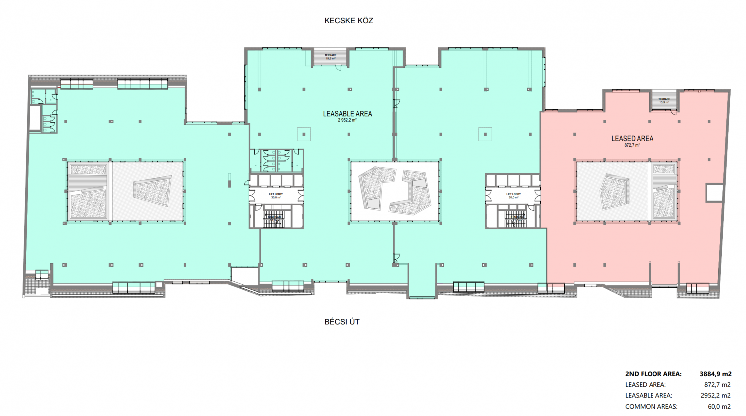
2. emelet
3885 m22952 m2
1. emelet
4137 m22409 m2
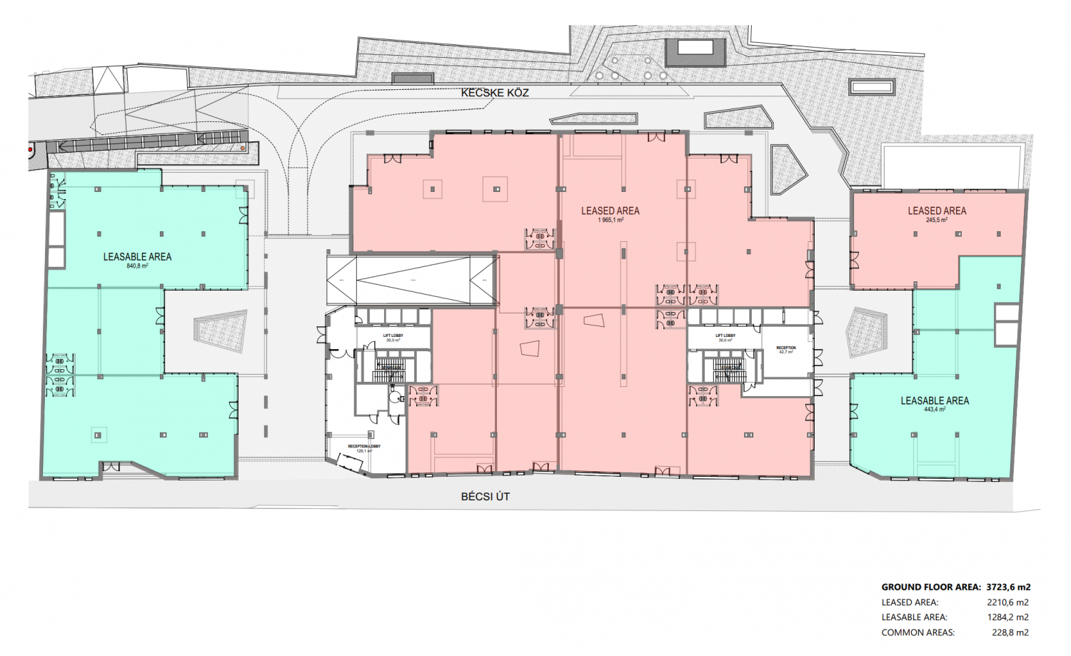
Földszint (retail)
3724 m21284 m2


 



Alaprajzok


Ugrás az oldal tetejére